CHĒZ COFFEE & CO - PARIS 6ÈME

 

PROFESSIONNEL – 40 m2 – RÉNOVATION
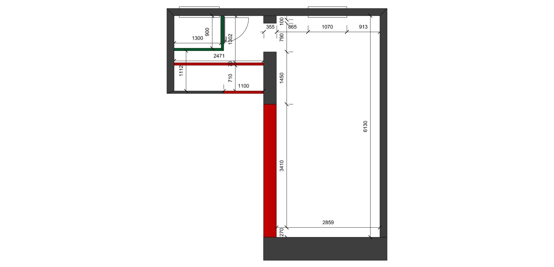
• Architecture d’intérieur : plan, plan électrique
• Conception cuisine professionnelle
• Conception escalier

• Conception mobiliers
• Décoration d’intérieur & agencement
• Descriptif travaux & suivi de chantier


LA MISSION

Le projet consiste à transformer une ancienne boutique de chaussures en un café original, combinant la vente de cafés de qualité, de pâtisseries artisanales et de vêtements de seconde main de luxe. Deux éléments d'origine ont été préservés : le sol, soigneusement rénové, et une structure en bois clair en forme de cage, teinte et adaptée pour s'harmoniser avec le nouveau design.

Au rez-de-chaussée, la cloison qui séparait l'espace de vente de l'ancienne réserve a été supprimée, créant un espace ouvert destiné à accueillir un bar et une cuisine. L'ancien escalier en colimaçon, qui menait à l'étage où se trouvait le bureau, a été remplacé par un grand escalier d'angle, conçu comme une sculpture centrale dans l'espace. Cet escalier invite naturellement les clients à monter à l'étage, où se déroulent la dégustation et l'essai des vêtements.

À l'étage, les cloisons existantes ont été entièrement déposées et redistribuées, offrant plus d’espace et une meilleure circulation. Une nouvelle surface de plancher a été ajoutée à l'emplacement de l'ancien escalier de la réserve pour y aménager des toilettes et une cabine d'essayage. Le parquet existant, déjà peint, a été repeint dans une teinte rappelant la terre cuite du sol du rez-de-chaussée, assurant une continuité visuelle harmonieuse.

Afin de renforcer l'atmosphère chaleureuse et élégante, les murs et plafonds ont été recouverts d'une peinture à la chaux dans des tons naturels, mettant en valeur les éléments en pin et hêtre, teints dans une teinte de chêne moyen. Le mobilier sur mesure a été soigneusement conçu pour s'adapter à la structure en forme de cage, dont les tasseaux mesurent 4 cm de section, apportant une touche de cohérence à l'ensemble.

Pour attirer l'attention vers l'intérieur de la boutique, un bandeau de carrelage graphique de la collection Puzzle de Mutina a été posé sur le bar, recouvert de granit noir. Au fond de la cuisine, une fenêtre condamnée a été dissimulée derrière de grands miroirs, permettant ainsi de réfléchir la lumière et d'apporter une sensation de profondeur au rez-de-chaussée, qui ne mesure que 20 m². Devant ces miroirs, un système d'étagères suspendues sur mesure a été intégré, offrant des solutions de rangement tout en préservant une esthétique légère.

Le mobilier et les luminaires ont été majoritairement chinés, à l'exception de la suspension en papier signée Ferm Living, qui semble flotter avec légèreté au centre de la structure en bois.

 

AVANT / APRÈS

 

AVANT

 

VUES 3D